Project Name : Desain Rumah Minimalis Lahan Miring dengan View Kontur Alam
Area : +-75 sqm
Year : 2025
Architects : Argajogja
Structural Engineering : Argajogja
Rumah ini dirancang untuk menjawab kebutuhan hidup urban yang serba cepat tapi tetap butuh ruang bernapas. Dengan luas sekitar 100 meter persegi, setiap sudutnya dibuat efisien tanpa terasa sempit. Fasad putih minimalis dipadukan dengan aksen kayu agar tampil bersih tapi tetap hangat.
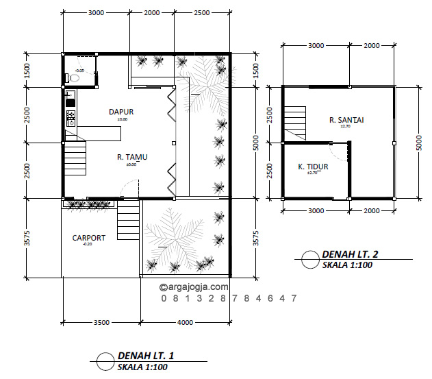
Roster di bagian depan bukan cuma estetika, tapi juga solusi privasi dan sirkulasi udara. Rumah ini berada di area berkontur, sehingga permainan level jadi bagian dari desain. Tangga masuk memberi kesan transisi yang tenang dari hiruk pikuk jalan. Lantai satu difungsikan sebagai area publik yang nyaman dan terbuka. Ruang tamu menyatu dengan dapur untuk menciptakan interaksi yang lebih cair. Taman di lantai satu jadi sumber cahaya dan udara alami. Aktivitas harian terasa lebih sehat dan rileks.
Di lantai dua, konsep mezanin membuat ruang terasa lebih luas secara visual. Dua kamar tidur dirancang simpel tapi fungsional. Ruang keluarga menjadi titik kumpul yang hangat untuk istirahat dan quality time. Bukaan jendela dimaksimalkan untuk pencahayaan alami sepanjang hari.
Taman samping dengan view ke area bawah jadi fitur spesial yang jarang dimiliki rumah kota. Dari sini, penghuni bisa menikmati pemandangan dan ketenangan. Material beton ekspos memberi kesan jujur dan modern. Kombinasi material dipilih agar rumah awet dan minim perawatan. Desain ini cocok untuk keluarga muda yang ingin tumbuh bersama rumahnya.

Rumah bukan cuma tempat pulang, tapi ruang untuk berkembang. Setiap elemen dirancang dengan alasan dan fungsi yang jelas. Tidak ada ruang yang terbuang sia-sia. Konsep simpel justru membuat rumah terasa berkelas. Ini adalah contoh bahwa rumah kecil bisa terasa besar.

Desain bukan soal ukuran, tapi cara berpikir. Rumah ini membuktikan bahwa keterbatasan lahan bukan hambatan. Justru jadi peluang untuk berkreasi. Hunian ini lahir dari kebutuhan nyata kehidupan modern. Simple, fungsional, dan tetap punya karakter. Rumah yang relevan untuk generasi hari ini dan nanti.
Anda ingin didesainkan? WA Argajogja Arsitek







