Project Name : Rumah Lebar 6 Meter Tapi Tetap Adem dan Estetik
Area : +-90 sqm
Year : 2026
Architects : Argajogja
Structural Engineering : Argajogja
Dari fasad, rumah ini tampil modern–minimalis dengan permainan massa kotak yang tegas. Elemen roster bata di lantai atas jadi highlight utama karena berfungsi ganda sebagai estetika sekaligus secondary skin untuk pencahayaan dan penghawaan alami. Roster juga bikin fasad lebih “hidup” tanpa harus banyak ornamen. Overstek datar di area carport memberi kesan clean sekaligus melindungi area depan dari panas dan hujan. Penggunaan warna netral putih dikombinasikan dengan hitam dan bata ekspos bikin tampilan rumah terlihat elegan tapi tetap hangat. Gate besi full solid memberi privasi maksimal, cocok untuk lingkungan urban yang padat.
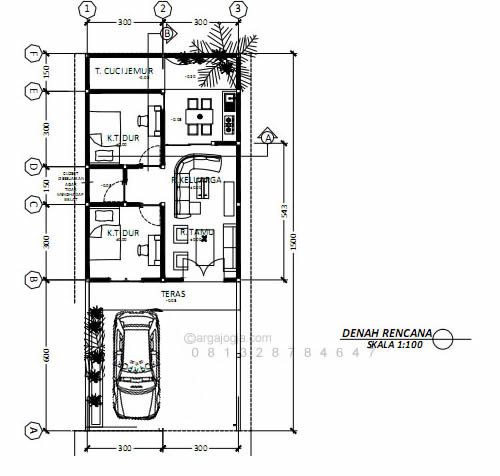
Dari sisi denah, layout-nya efisien dan fungsional untuk lahan memanjang. Area carport dan teras depan terasa lega dan transisi ke ruang dalam cukup nyaman. Ruang tamu berada di area tengah sehingga privasi kamar tidur tetap terjaga. Dua kamar tidur disusun rapi dan mudah diakses tanpa koridor panjang yang boros ruang. Kamar mandi ditempatkan strategis di tengah sehingga mudah dijangkau semua ruang. Area dapur dan ruang makan menyatu langsung dengan taman belakang, ini jadi nilai plus karena menciptakan sirkulasi udara silang dan suasana yang lebih segar. Kehadiran taman belakang sekaligus area cuci jemur membuat rumah tetap sehat, terang, dan tidak terasa sempit meski berada di lahan 6 meter.
Rumah ini berdiri di lahan 6×15 meter tapi tetap terasa lega. Fasadnya dibuat simpel dengan bentuk geometris yang tegas. Roster bata jadi fokus utama yang langsung mencuri perhatian. Selain estetik, roster ini bantu sirkulasi udara dan cahaya alami. Jadi rumah tetap terang tanpa harus boros listrik. Area carport dibuat clean dengan overstek yang rapi.
Gate hitam solid bikin rumah terasa aman dan privat. Masuk ke dalam, ruang tamu ditempatkan strategis di tengah rumah. Privasi penghuni tetap terjaga tanpa mengorbankan kenyamanan. Dua kamar tidur cukup lega untuk kebutuhan keluarga kecil. Satu kamar tamu bisa fleksibel jadi ruang kerja atau ruang multifungsi.

Kamar mandi diletakkan di posisi yang gampang diakses. Layout-nya simpel tapi sangat efisien. Dapur dan ruang makan dibuat menyatu tanpa sekat. Area ini langsung menghadap ke taman belakang. Suasana makan jadi lebih santai dan segar. Taman belakang berfungsi sebagai paru-paru rumah. Cahaya dan udara masuk maksimal ke area dalam. Aktivitas masak jadi lebih nyaman.
Area cuci jemur dipisahkan di bagian belakang. Jadi rumah tetap rapi dan tidak berantakan. Sirkulasi udara silang terasa optimal. Rumah tidak terasa pengap meski di lahan terbatas. Desain ini cocok untuk lingkungan perkotaan. Gaya minimalisnya timeless dan gak gampang bosan.

Material sederhana tapi ditata dengan konsep yang matang. Bukti kalau rumah kecil bisa tetap punya kualitas ruang. Desain bukan soal besar kecilnya lahan. Tapi soal bagaimana ruang dirancang dengan cerdas.
Anda ingin didesainkan? WA Argajogja Arsitek







