Project Name : Compact House with Mezzanine – Solusi Lahan Sempit
Area : +-30 sqm
Year : 2025
Architects : Argajogja
Structural Engineering : Argajogja
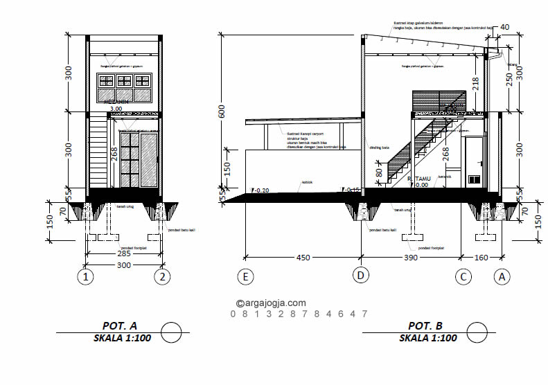
Rumah ukuran 3×10 meter ini punya konsep compact living yang maksimalin tiap ruang dengan cerdas. Fasad dibuat super minimalis dengan bentuk geometris sederhana dan bidang dinding yang bersih, bikin tampilan rumah terlihat modern, bersih, dan elegan. Jendela horizontal di lantai atas memberi aksen visual yang halus tapi tegas, sekaligus menjaga privasi ruang tidur di mezanin.
Bagian depan dilindungi kanopi transparan sehingga tetap terang tapi terlindungi dari hujan dan panas. Pagar dengan finishing metal mesh bikin tampilan tetap ringan dan nggak bikin rumah terlihat “tertutup” meski area sempit. Lantai satu difokuskan untuk ruang keluarga, dapur, dan kamar mandi yang penataannya dibuat open agar terasa lega. Mezanin untuk ruang tidur jadi solusi brilian untuk hunian kecil agar tetap punya area yang nyaman dan privat tanpa perlu menambah luas bangunan. Desain ini cocok buat living single, couple muda, atau keluarga kecil yang punya gaya hidup simple, fungsional, tapi tetap stylish. Ini rumah kecil, tapi cara berpikirnya dewasa

Kadang yang kita butuhkan bukan rumah yang besar, tapi rumah yang terasa hangat, lega, dan bikin kita betah pulang. Desain ini hadir dari lahan mungil 3×10 meter, tapi setiap sudutnya dipikirin supaya tetap nyaman dan berfungsi maksimal.

Fasad dibuat minimalis biar terlihat clean dan modern, tanpa banyak ornamen tapi tetap punya karakter. Pagar metal mesh dipilih supaya tampilan tetap ringan dan nggak terasa tertutup. Kanopi transparan jadi penyambut yang lembut sebelum masuk rumah. Ruang tamu, dapur, dan kamar mandi di lantai satu mengalir tanpa sekat biar feel-nya lebih lapang. Lalu mezanin di atas jadi ruang tidur yang tenang dan private tanpa perlu menambah luas bangunan. Jendela horizontal kecil di fasad jadi aksen yang manis, menjaga privasi tapi tetap kasih cahaya alami.

Rumah ini ngajarin bahwa ukuran bukan batas buat nyaman. Yang paling penting adalah gimana ruang diatur dan dirasakan. Ada estetika yang sederhana tapi menyenangkan di sini. Suasana yang tenang tapi tetap stylish.

Rumah kecil bisa punya jiwa yang besar. Ini bukan tentang punya banyak ruang, tapi bagaimana memaknai ruang yang kita punya. Tiap detail kecil terasa berarti. Tiap sudut punya alasan kenapa dibuat seperti itu. Rasanya hangat, sederhana, dan jujur. Seperti kehidupan yang ingin kita jalani dengan lebih pelan. Rumah ini adalah cerita tentang hidup yang nggak perlu terburu-buru. Tentang menikmati ruang apa adanya. Tentang pulang yang benar-benar pulang. Tentang tinggal di tempat yang bikin kita merasa cukup. Karena cukup itu sebuah kenyamanan. Dan kenyamanan adalah bentuk kemewahan yang sebenarnya

Anda ingin didesainkan? WA Argajogja Arsitek







